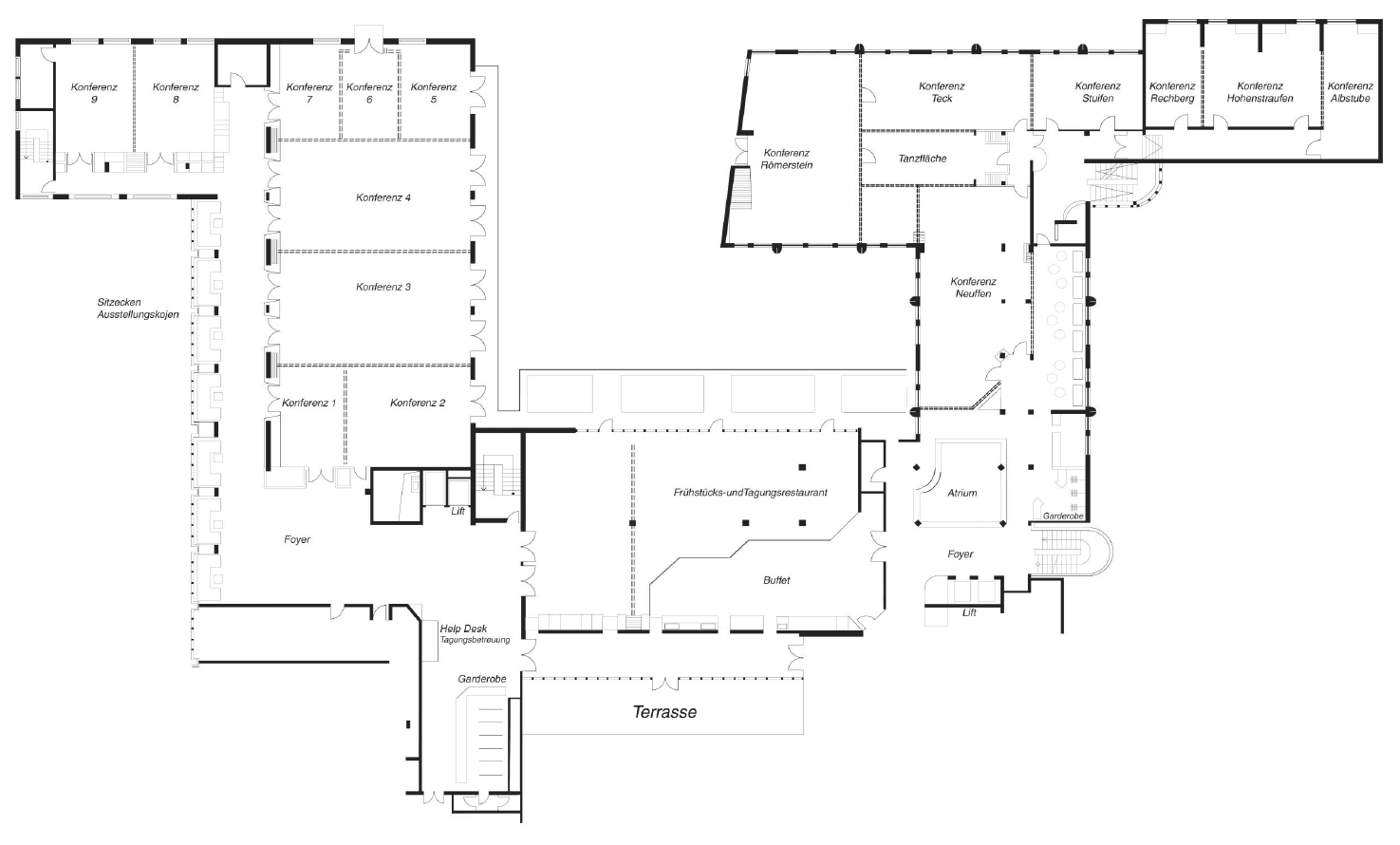
Tagungsräume
ALLE DATEN AUF EINEN BLICK
-
16 flexibel kombinierbare Veranstaltungsräumlichkeiten
-
Tageslicht, Klimaanlage, 500 Lux Beleuchtung , Wireless-Lan, elektrisch verdunkelbar
-
Raum 1-7 mit davorliegendem Foyer sind PKW befahrbar
-
Ausstellungsnischen im Foyer
-
alle Veranstaltungsräumlichkeiten befinden sich in der ersten Etage
-
zentrale Kaffeepausenstationen mit Heißgetränkeautomaten in den Foyers
-
Terrasse für Empfänge, Kaffeepausen und Gruppenarbeiten
-
Tagungsbetreuung
verkauf(at)schlossberg.bestwestern.de
Tel: +49 (0) 7022 704 124 oder Tel: +49 (0) 7022 704 107



Best Western Plus Hotel Am Schlossberg
Europastrasse 13
72622 Nürtingen
Telefon:+49 7022 704 0
E-Mail: info@schlossberg.bestwestern.de





